
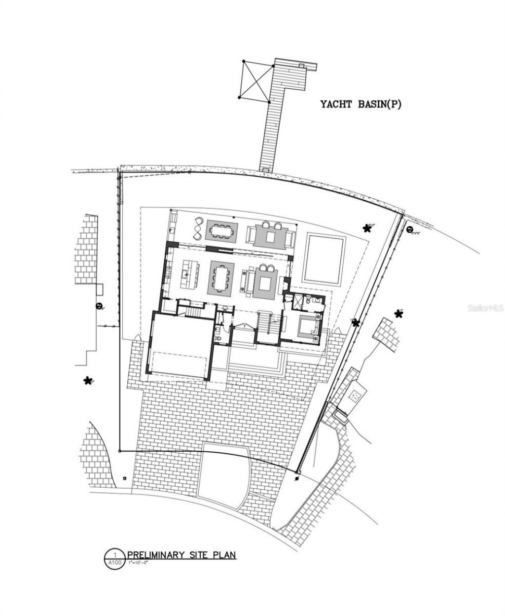
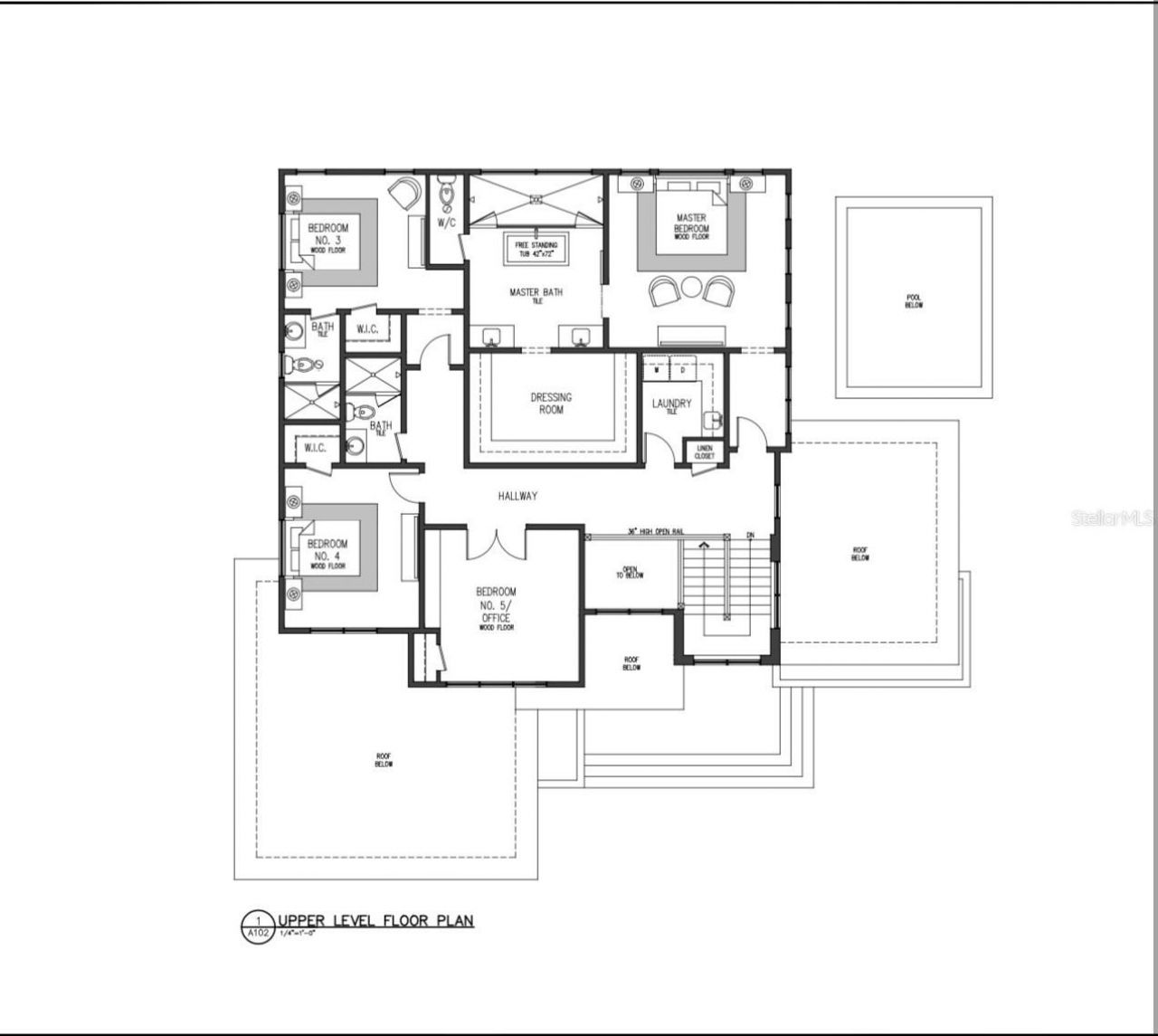
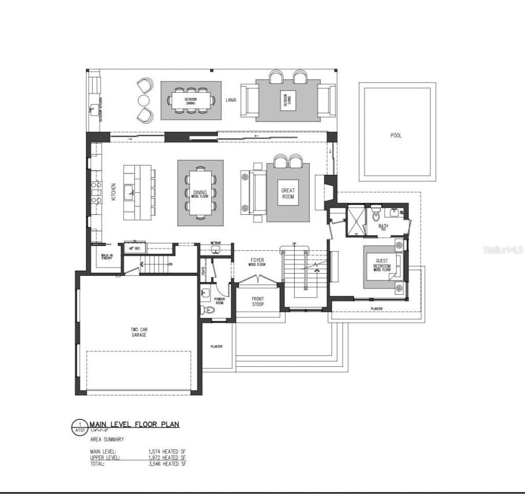
Pre-Construction. To be built. Pre-Construction | To Be Built | Causeway Isles WaterfrontBuild your dream home on one of St. Petersburg's most desirable open-water homesites in the heart of Causeway Isles.Located at 7821 3rd Ave S, this exceptional property offers over 100 feet of deep saltwater frontage with a protected yacht slip suitable for vessels up to 80 feet. Enjoy expansive water views, peaceful surroundings, and unforgettable sunset skies overlooking Sunset Park-perfectly capturing the...Pre-Construction. To be built. Pre-Construction | To Be Built | Causeway Isles WaterfrontBuild your dream home on one of St. Petersburg's most desirable open-water homesites in the heart of Causeway Isles.Located at 7821 3rd Ave S, this exceptional property offers over 100 feet of deep saltwater frontage with a protected yacht slip suitable for vessels up to 80 feet. Enjoy expansive water views, peaceful surroundings, and unforgettable sunset skies overlooking Sunset Park-perfectly capturing the essence of waterfront living.This prime location places you just minutes from downtown St. Pete, the beaches of Treasure Island, and direct access to the Intracoastal Waterway, making it ideal for both boating and everyday convenience.A new seawall installed in May 2025 adds long-term value and confidence as you plan your future residence. The lot comfortably supports a custom home in the 3,850+ square foot range, allowing for a thoughtfully designed layout that embraces indoor-outdoor living.A proposed concept features a 4-bedroom, 4.5-bath design with a private pool, outdoor kitchen, spacious covered lanai, and optional elevator. The architecture leans toward a modern coastal style, incorporating clean lines, natural light, and expansive glass to highlight the water views.Neo Homes offers a full turnkey design-build approach, including:Custom architecture and interior designHigh-end, curated finish selectionsHurricane-rated construction built to Florida standardsA streamlined, start-to-finish building experienceThis is an opportunity to create a personalized waterfront residence tailored to your lifestyle in a well-established boating community.If you've been searching for a premium waterfront homesite in St. Petersburg, this property is truly worth exploring.Note: Photos shown are from a previously completed home by Neo Homes and are intended to represent the quality, craftsmanship, and level of finishes available for this homesite.
View MoreCourtesy of
Agency Name: PHIL DESAUTELS P.A.
Agency Contact: 813-629-7355
Agent Name: Sheila Desautels
Presented by
Agent Name: Dee Emmanuel
Agent Phone: 954.648.3423
Agency Title: The Keyes Company
Request Info
Send an email with a link to
7821 3rd Avenue S, Saint Petersburg, FL 33707.
Email 7821 3rd Avenue S, Saint Petersburg, FL 33707
Thank you for your inquiry! As a thank you, we have a Special Mortgage Offer for You.
We would like to provide you a free, no-obligation, home loan pre-approval review.